Skip to content

Land off Water Lane, Smarden

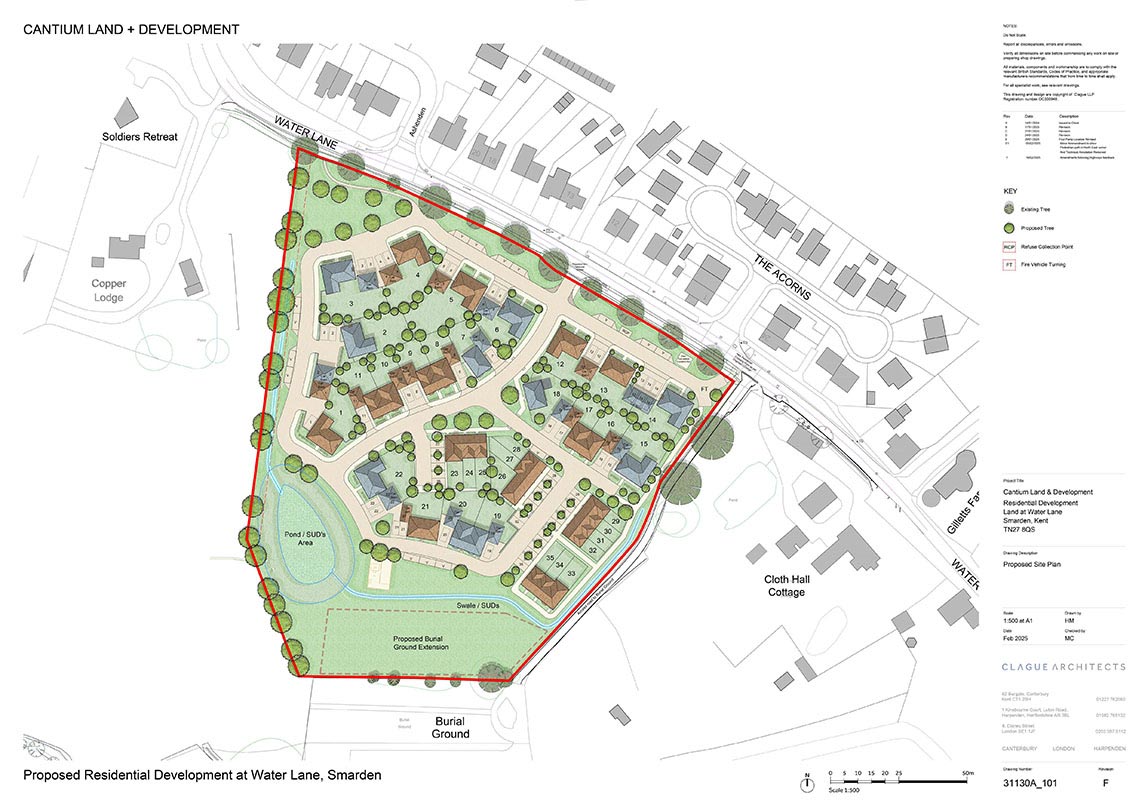
Overview

  • Sympathetically designed scheme for circa 35 houses from 2-4 bedrooms.
  • Land to provide for an expansion to the existing Burial Ground.
  • Footpath improvements to Water Lane.
  • 14 Affordable Homes for local people included.
  • Extensive new landscape proposed.

Consultant Team

Architect: Clague Architects
Planning: Ian Bull Consultancy
Highways: C&A Consulting
Drainage: C&A Consulting
Ecology: Hone Ecology
Landscape: Alastair Macquire

Land at Water Lane - Smarden